730B-S «Ной и команда» - проект полутораэтажного коттеджа, планировка мастер спальня, с эркером и с террасой, с сауной в цоколе

Автор проекта: В. Тарасов
  • Общая площадь дома:291.1 м²
  • Площадь отапливаемых помещений:189.7 м²
Стоимость проекта:
  • Архитектурно-строительные чертежи (АС)    67 500 ₽
  • Внутренние инженерные системы (ИС) отопление, водопровод, канализация, электрооборудование    По дог.
  • Строительный паспорт проекта    3 500 ₽
  • Разбивочный план вашего участка    6 000 ₽
  • Дополнительная копия проекта    4 000 ₽
Стоимость, дополнительные опции только для проектов Тарасова В.А.:
  • Электронная копия в формате PDF     5 000 ₽
  • Корректировка Паспорта проекта
    (в зависимости от пожеланий)   
    По дог.
  • Корректировка конструкций дома
    (в зависимости от пожеланий)   
    По дог.
  • Разработать установку скрытых алюминиевых роллет (опция, отдельный альбом)    1 ₽
Заказать проектПоложить в мои желания
Спасибо за обращение к нам, в ближайшее время мы вам ответим

Строить легче с проектом от  "АЛЬФАПЛАН" потому, что у нас подробные строительные чертежи.  Смотрите ВИДЕО, читайте на странице  Состав проекта дома.

Готовые проекты: 1. не предназначены для строительства в СЕЙСМИЧЕСКИ АКТИВНЫХ РАЙОНАХ, а фундаменты - в условиях ВЕЧНОЙ МЕРЗЛОТЫ, 2. проекты домов требуют Привязки к конкретному участку строительства (внизу страницы).

.

Общая площадь дома 291.1 м²
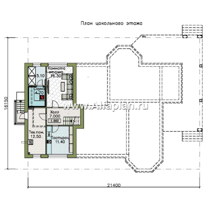
Площадь цокольного этажа 57 м²
Площадь дома, с цокольным этажом 251.5 м²

«Ной и команда» - проект полутораэтажного коттеджа, планировка мастер спальня, с эркером и с террасой, с сауной в цоколе - технические характеристики

Тип фундамента монолитная ж/б плита
Тип наружных стен кирпич/газо(пено)бетонные блоки
Тип внутренних несущих стен кирпич
Тип перекрытий монолитная ж/б плита
Тип кровли натуральная черепица/битумная черепица
Наружная отделка стен декоративная штукатурка
Наружная отделка цоколя облицовочный камень
Гараж Без гаража
Габаритные размеры дома 22.4 м x 17 м
Высота дома от уровня пола 1-го этажа 6.15 м
Высота 1-го этажа от пола до потолка 3 м
Ширина 22.4 м
Длина 17 м
Утеплитель минеральная вата
Материал окон из ПВХ профилей/Защитные роллеты ALUTECH (реклама: ООО "Алютех-М")

Описание проекта

Этот коттедж внешне выглядит довольно небольшим, но внутри имеется почти 300 кв. м. площади, причем третья часть от общей территории – жилые комнаты. Образ одноэтажного здания обманчив: по проекту здесь размещается целых три этажа (включая мансарду и цоколь). Игра шоколадных оттенков облицовочных материалов и кровли выгодно подчеркивается массивными колоннами возле крыльца и декором из крупного камня.

Этот проект коттеджа предусматривает наличие цокольного этажа, который занимает лишь правое крыло здания. Здесь располагается холл, большая постирочная, кладовка, туалет, техническое помещение (имеется отдельный вход с улицы), комната отдыха и санузел (с ванной, душевой кабиной и мини-сауной).

На первом этаже имеется холл, прихожая, туалет, санузел с душевой кабиной, небольшая кухня, просторная гостиная-столовая с камином, три спальни (одна с личной гардеробной). С задней стороны здания к гостиной прилегает крытая терраса, через которую предусмотрен запасной вход в особняк.

Второй этаж является мансардным, он располагается полностью под кровлей. Здесь нет жилых помещений: предусмотрена бильярдная комната с окнами в крыше и две кладовки. Площадь над гостиной-столовой оформлена по технологии «второй свет». Перекрытие между этажами отсутствует, потолок расположен под самой крышей мансарды. Это придает комнате необычный вид, делает ее более просторной.

Этот проект дома из газобетона можно реализовать в альтернативном варианте: из пенобетона или пустотного кирпича. Первый этаж предусмотрен для проживания, второй – для хозяйственных целей и отдыха. Коттедж очень уютный и функциональный, может использоваться как загородная дача или дом для постоянного проживания.

Сервис для заказчиков

  • Сервис
    для заказчиков

    Внесение изменений в проекты

    Подробнее
  • Корректировка
    конструкций

    Изменение фундамента, перекрытий, теплые полы

    Подробнее
  • Планировка
    участка

    Разбивочный план, благоустройство, озеленение

    Подробнее
  • Индивидуальное
    проектирование

    Разработка проекта по заданию Закачика

    Подробнее
  • Индивидуальный
    фасад

    Корректировка фасада по желаниям заказчика

    Подробнее

Комментарии 0

Об этом проекте ещё никто не писал.
Задай вопрос или поделись своим мнением!
Нам не всё равно

Добавить комментарий
Добавление комментария